Listing Tools

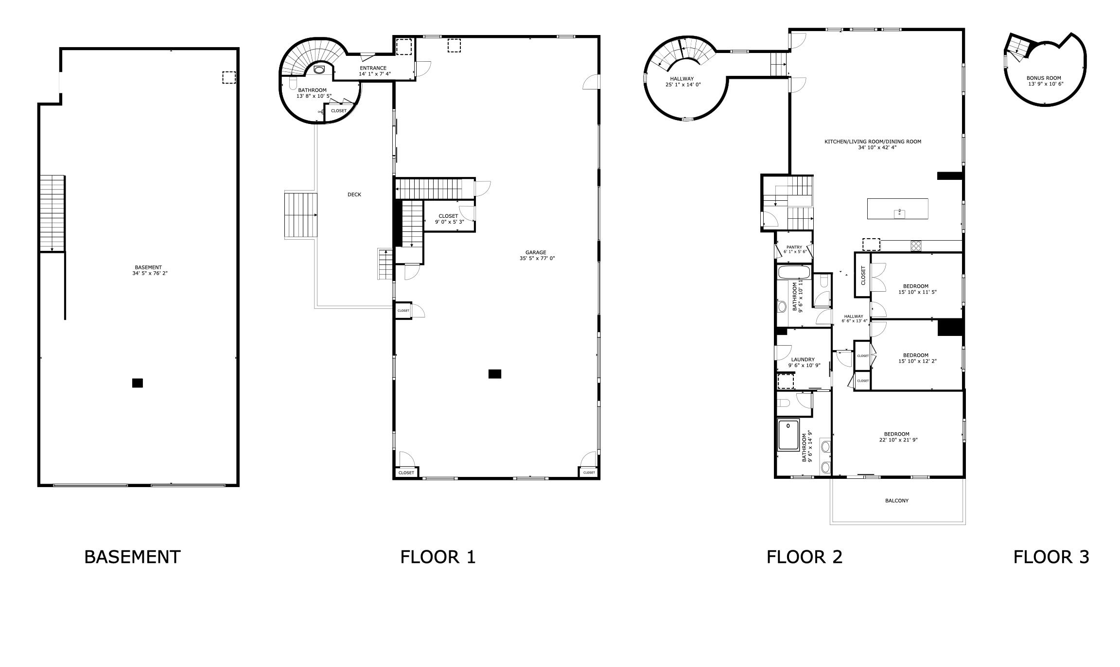
Imagine a life where passion & prestige converge-a private retreat designed not only for living, but for showcasing the things you love most. Presented in the Fine Homes & Estates Collection, this home is nestled on 4.4 acres of pristine land. This spectacularly remodeled barndominium redefines luxury living for the true enthusiast. From the moment you arrive, it's clear this is more than a home-it's a ''Statement Estate''. The property is set back from the road for privacy, yet offers quick access to the cultural heartbeat of the city, the International Jetport, three private Country Clubs & the unmatched natural beauty of Maine's lakes & rugged trails. All of these conveniences are within twenty minutes; the perfect balance of seclusion & connection. Step past the soaring turret into the main level where the showroom takes center stage. With soaring ceilings & dramatic presence, this gallery-style space is designed to elevate your automotive, motorcycle, or marine collection into art. Whether you're entertaining guests or simply admiring your own treasures, the atmosphere is unmatched. On the lower level, form meets function in a professional-grade mechanic's garage. Complete with a car lift & multi-vehicle access, it's the ultimate workshop for anyone who believes that luxury extends to how you care for your collection. Crowning the estate is the third-floor residence-an exquisitely designed, condo-style retreat. Featuring three bedrooms, vaulted ceilings, & an open-concept layout, this space has been crafted with the finest materials: custom cabinetry, stone surfaces, gleaming hardwoods, & designer fixtures. Expansive windows flood the home with light & frame sweeping views of the acreage, ensuring every moment is bathed in serenity. Every inch of this property reflects high-end craftsmanship & thoughtful design, This is not simply a residence, it's a showroom, a sanctuary, & a statement-crafted for the visionary who demands nothing less than extraordinary.

Property Details of 440 Blackstrap Road

Property Details

Interior Features

Exterior Features

Utilities and Appliances

Community

Map Location

Listing data is derived in whole or in part from the Maine IDX & is for consumers' personal, non commercial use only. Dimensions are approximate and not guaranteed. All data should be independently verified. ©2026 Maine Real Estate Information System, Inc. All Rights Reserved. equal opportunity housing logo   Privacy Policy

Freeport & Midcoast Maine Real Estate | Balsam Realty participates in ©2026 Maine Listings Internet Data Exchange program, allowing us to display other Maine IDX Participants' listings. This website does not display complete listings. Certain listings of other real estate brokerage firms have been excluded. Mortgage figures are estimates. Check with your bank or proposed mortgage company for actual interest rates. This product uses the FRED® API but is not endorsed or certified by the Federal Reserve Bank of St. Louis.

Hi there! How can we help you?

Contact us using the form below or give us a call.

Send Us A Message:

I agree to receive marketing and customer service calls and text messages from Balsam Realty. To opt out, you can reply 'stop' at any time or click the unsubscribe link in the emails. Consent is not a condition of purchase. Msg/data rates may apply. Msg frequency varies. Privacy Policy.

Do not fill in this field:

This site is protected by reCAPTCHA and the Google Privacy Policy and Terms of Service apply.

Hi there! How can we help you?

Contact us using the form below or give us a call.

Send Us A Message:

Do not fill in this field:

This site is protected by reCAPTCHA and the Google Privacy Policy and Terms of Service apply.

Hi there! How can we help you?

Contact us using the form below or give us a call.

Send Us A Message:

Do not fill in this field:

This site is protected by reCAPTCHA and the Google Privacy Policy and Terms of Service apply.

Do not fill in this field:

This site is protected by reCAPTCHA and the Google Privacy Policy and Terms of Service apply.

Do not fill in this field:

This site is protected by reCAPTCHA and the Google Privacy Policy and Terms of Service apply.

Do not fill in this field:

This site is protected by reCAPTCHA and the Google Privacy Policy and Terms of Service apply.

$

Do not fill in this field:

This site is protected by reCAPTCHA and the Google Privacy Policy and Terms of Service apply.