Listing Tools

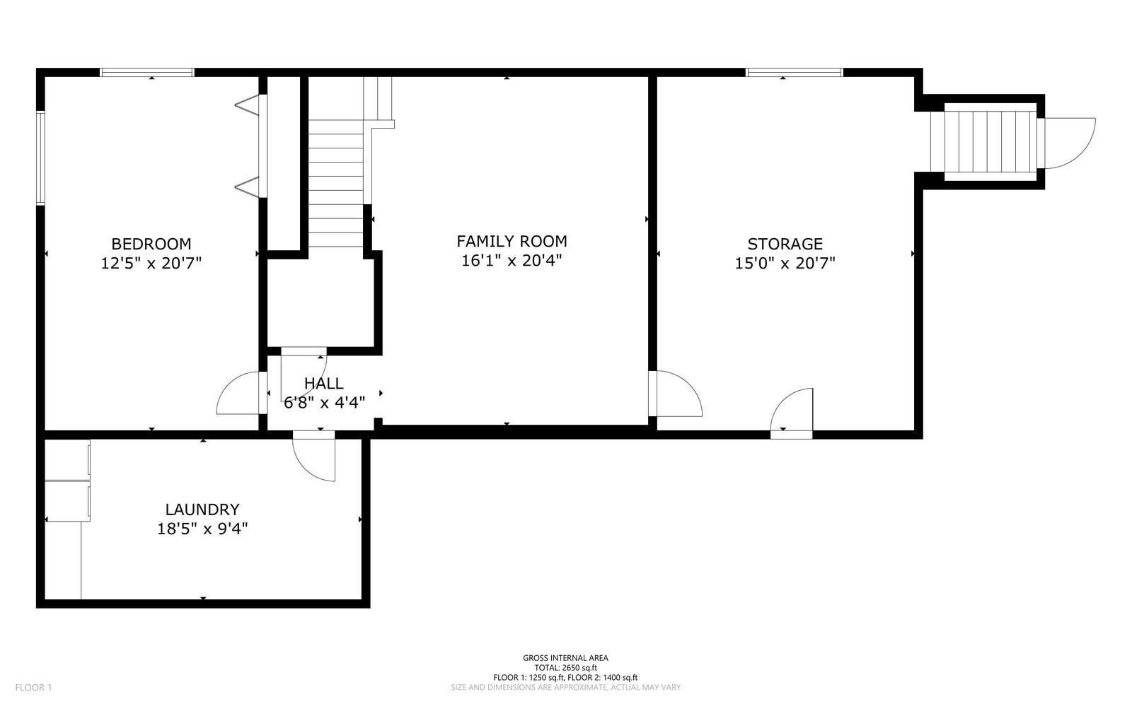
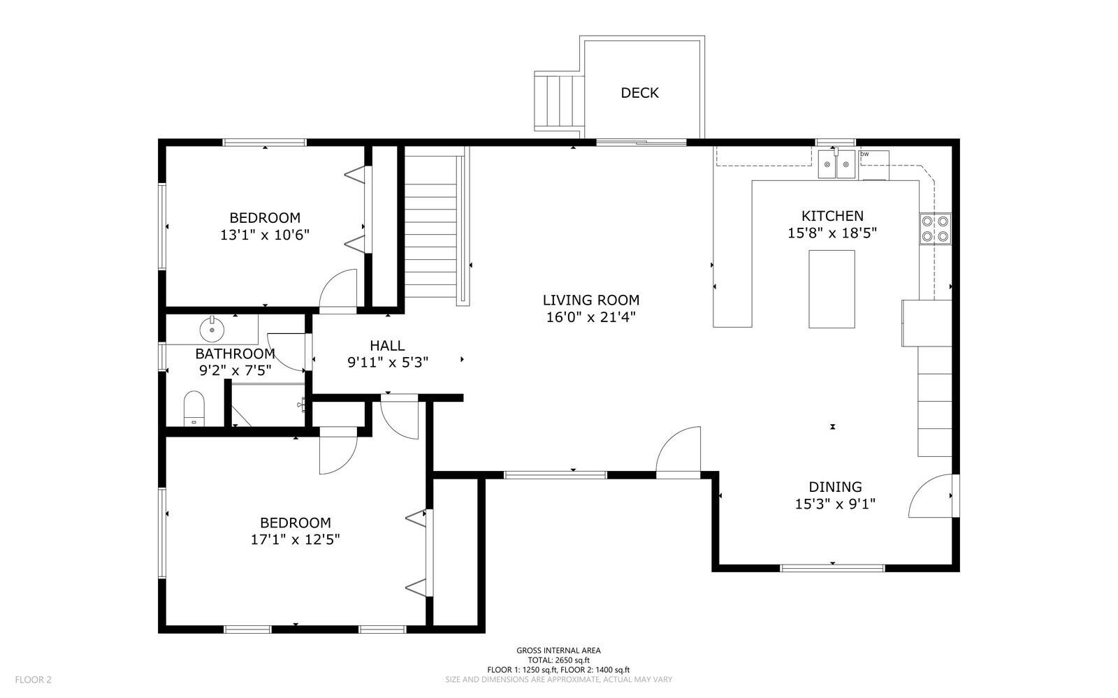
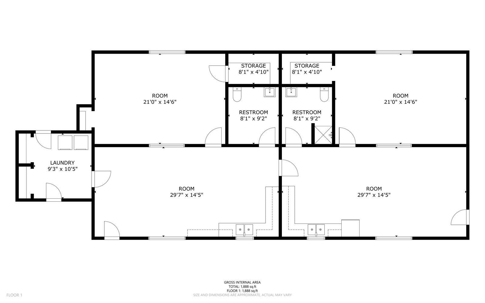
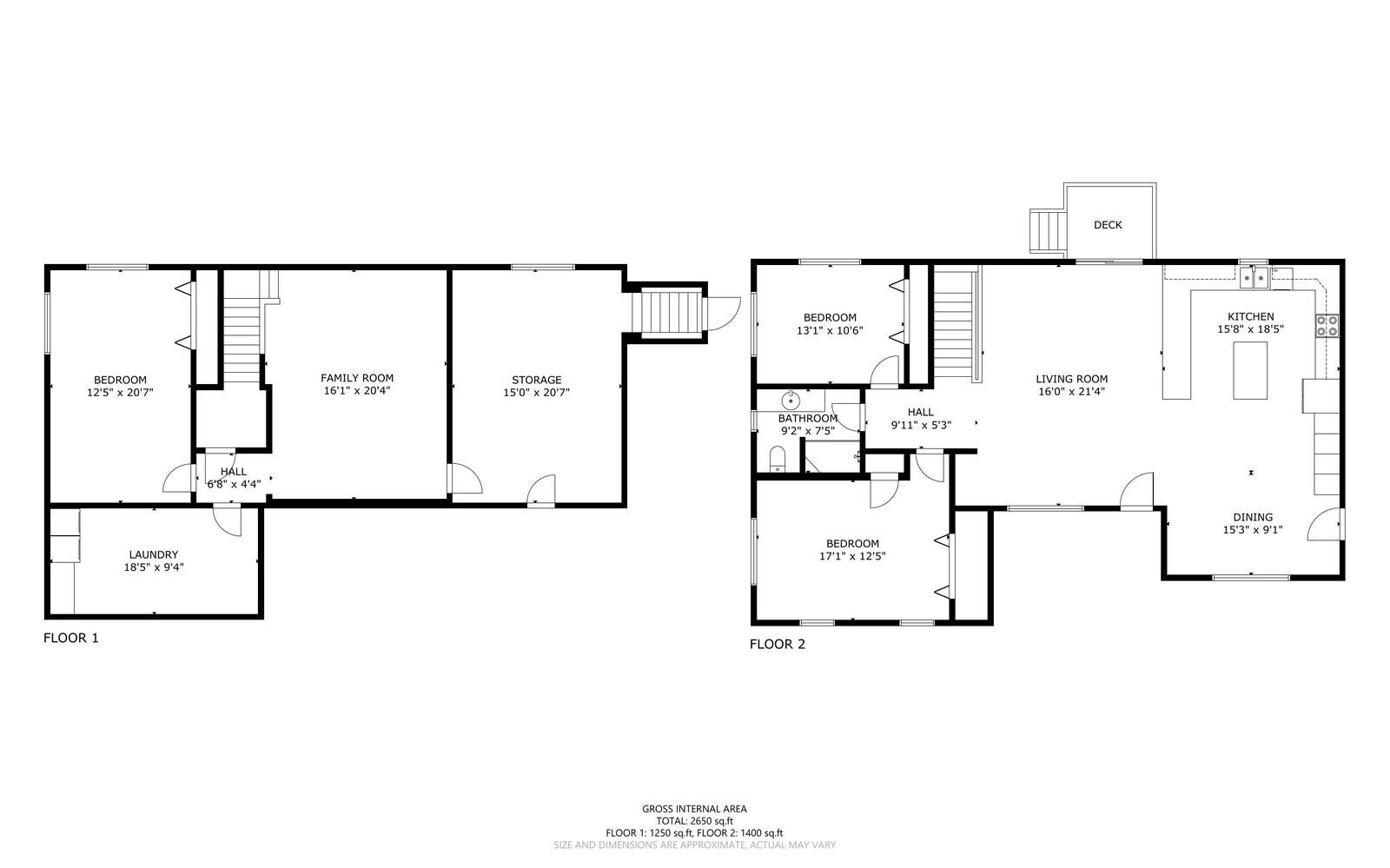
MOTIVATED SELLERS!! A mixed use property is rare and this one is even more so! Situated on almost 6 acres this parcel comes with 3 separate buildings. The main residence offers an open and spacious floor plan with a huge but warm and inviting kitchen, dining area, breakfast nook, living room, 2 modest sized bedrooms and a full bathroom with tiled glass shower. Off the living room is a deck that walks down to a patio with an inground pool and pool house. The basement is large, full, and finished with two additional bedrooms with closets. One of which is currently being used for storage but has two forms of egress that includes a doghouse door. There is also a family room and large laundry room that could easily be turned into a 2nd bathroom if you just add a vanity, toilet, and sink. Take a stroll down the walk way to a one level living ranch (once used as a daycare) with mirrored floor plans each one containing a large living area with a bedroom, kitchenette, and full bathroom. Each side has its own entrance which makes it a perfect set up for renting as an onsite investment property or air bnb. As if that wasn't enough adjacent to the two ranches is a large oversized 2 car garage with an in law apartment above. The apartment is a studio with a kitchenette and full bathroom. Again with separate entrances so you can park your vehicles and store your stuff without interfering with a tenant or family member above. If you have no use for a tenant its a great place for additional storage or you could make it into a yoga studio! With lots of room and lots of options this property is a fantastic opportunity to make your dreams reality!

Property Details of 166 Weeks Mills Road

Property Details

Interior Features

Exterior Features

Utilities and Appliances

Community

Map Location

Listing data is derived in whole or in part from the Maine IDX & is for consumers' personal, non commercial use only. Dimensions are approximate and not guaranteed. All data should be independently verified. ©2025 Maine Real Estate Information System, Inc. All Rights Reserved. equal opportunity housing logo   Privacy Policy

Balsam Realty participates in ©2025 Maine Listings Internet Data Exchange program, allowing us to display other Maine IDX Participants' listings. This website does not display complete listings. Certain listings of other real estate brokerage firms have been excluded. Mortgage figures are estimates. Check with your bank or proposed mortgage company for actual interest rates. This product uses the FRED® API but is not endorsed or certified by the Federal Reserve Bank of St. Louis.

Hi there! How can we help you?

Contact us using the form below or give us a call.

Send Us A Message:

I agree to receive marketing and customer service calls and text messages from Balsam Realty. To opt out, you can reply 'stop' at any time or click the unsubscribe link in the emails. Consent is not a condition of purchase. Msg/data rates may apply. Msg frequency varies. Privacy Policy.

Do not fill in this field:

This site is protected by reCAPTCHA and the Google Privacy Policy and Terms of Service apply.

Hi there! How can we help you?

Contact us using the form below or give us a call.

Send Us A Message:

Do not fill in this field:

This site is protected by reCAPTCHA and the Google Privacy Policy and Terms of Service apply.

Hi there! How can we help you?

Contact us using the form below or give us a call.

Send Us A Message:

Do not fill in this field:

This site is protected by reCAPTCHA and the Google Privacy Policy and Terms of Service apply.

Do not fill in this field:

This site is protected by reCAPTCHA and the Google Privacy Policy and Terms of Service apply.

Do not fill in this field:

This site is protected by reCAPTCHA and the Google Privacy Policy and Terms of Service apply.

Do not fill in this field:

This site is protected by reCAPTCHA and the Google Privacy Policy and Terms of Service apply.

$

Do not fill in this field:

This site is protected by reCAPTCHA and the Google Privacy Policy and Terms of Service apply.